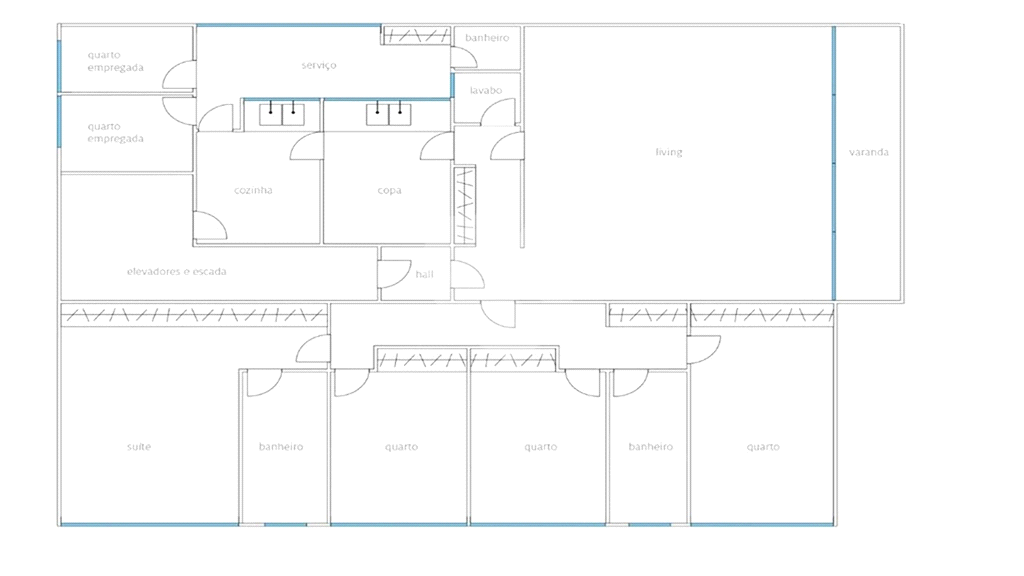
A solução ideal para quem faz questão de qualidade de vida: muito espaço, muita luz e insolação perfeita em andar alto com vista. Exclusividade e segurança, além da privacidade de um andar inteiro, todinho seu. E tudo isso no miolinho dos Jardins, pertinho da escola e do clube! Ideal para quem quer explorar a alta flexibilidade da planta quadrada de 242m², que permite a ampliação da sacada para a criação de varanda gourmet, assim como a criação de uma 2ª, 3ª ou 4ª suítes, ou ainda, a ampliação do living com a integração e remodelação da área da copa/cozinha/área de serviço, potencializando a luz natural. Confira as possibilidades na planta e no vídeo deste anúncio! E perfeito também para quem quer aproveitar a excelente base com piso em parquê e fazer uma rápida atualização, sem alterar a planta original de 4 dormitórios, sendo 1 suíte, amplo living com sacada, sala de jantar e sala de estar com três ambientes, lavabo, copa/sala de almoço, cozinha, despensa, área de serviço e dependências de empregada. Fácil também criar uma 2ª suíte com a mera instalação de uma porta ou ampliar os ambientes com a simples eliminação dos corredores. • Andar alto em edifício de esquina, 1 por andar • Ambientes espaçosos, com janelas grandes, muito iluminados e com uma amplitude visual privilegiada na densa região dos jardins. • Privacidade de 1 apartamento por andar e a exclusividade de apenas 18 apartamentos no edifício. • Entorno bem residencial e arborizado • Colégio Dante Alighieri: 1 quadra • Clube Paulistano: 5 min de carro, 15 à pé • Av. Paulista: 4 quadras • Metrô Trianon-MASP: 4 quadras • Rua Oscar Freire: 3 quadras • 2 vagas de garagem grandes, demarcadas e com escrituras próprias.
PONTOS DE REFERÊNCIA
LOCALIZAÇÃO
IMÓVEIS SEMELHANTES
JARDIM AMÉRICA | venda | APARTAMENTO
Apartamento à venda nos Jardins...
JARDIM AMÉRICA | venda | APARTAMENTO
Apartamento com 240 m², 4 quartos e 2 vagas ...
JARDIM AMÉRICA | venda | APARTAMENTO
Apartamento a venda com 190 m², 3 quartos e 2 vagas...
